Leider ist diese Immobilie nicht mehr verfügbar.

Sie können uns dennoch gerne kontaktieren und wir finden für Sie das Richtige.

Alternativ sehen Sie sich doch in unseren anderen Immobilien um!

OBJEKT-ID: 4561

Repräsentatives Ladenlokal im Herzen von Leverkusen zu vermieten!

Miete

OBJEKT-ID 4561 | Leverkusen

Die Ausstattung
in der Beschreibung

Standort

  • 51373 Leverkusen

Bezugstermin

  • Auf Anfrage

Provision

  • Ja, siehe beigefügte AGB!

Schaufensterlänge

  • ca. 12m

Deckenhöhe

  • 3.3 m

Zustand

  • Auf Anfrage

Technik

  • Auf Anfrage

Gesamtfläche
230 m²

Miete pro Monat
€ 6.500,00

Nebenkosten pro Monat
€ 500,00

KEYFACTS

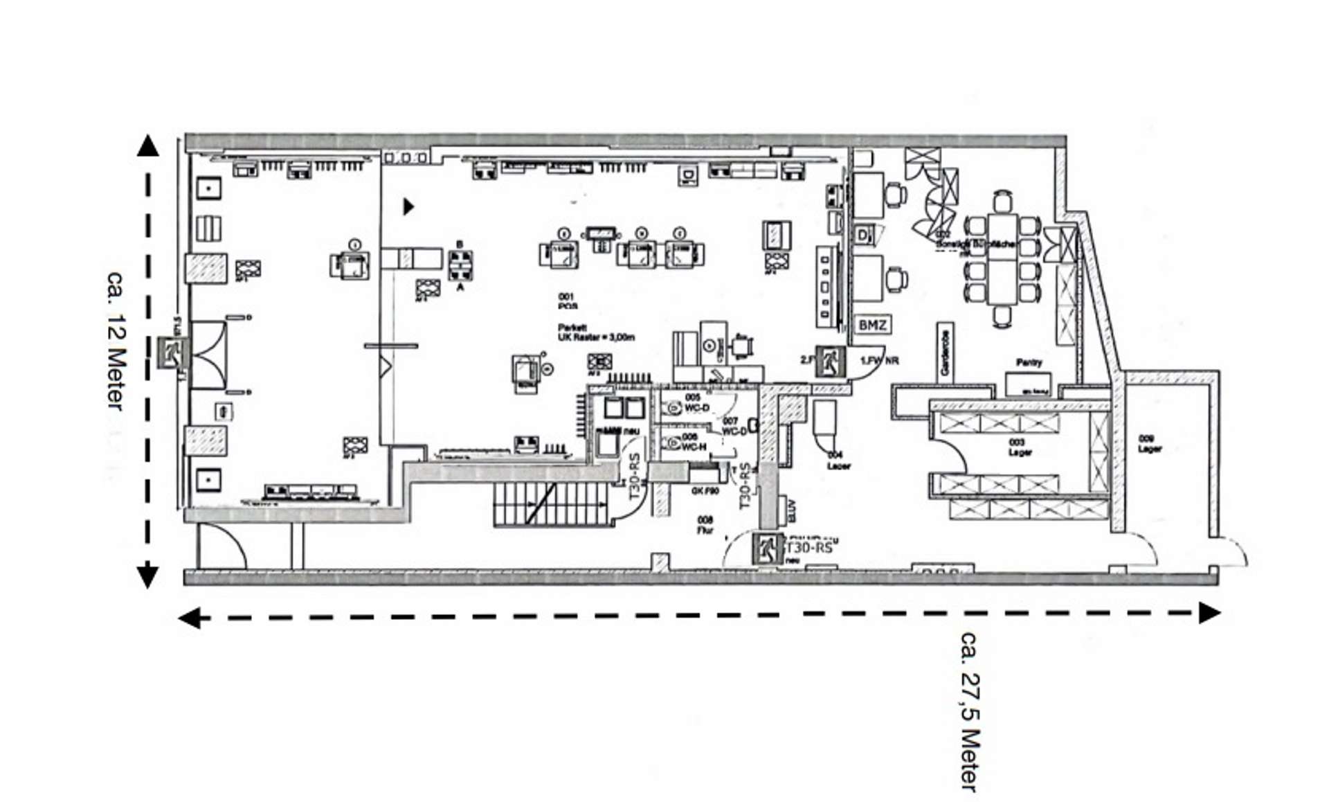
Grundriss

CONCEPTSTORIES

Ihr Ansprechpartner

Arian Moldovan

Tel: +49(800) 99 89 97 7

CONCEPTSTORIES

Ähnliche Objekte

Conceptstories

News

Künstliche Intelligenz verändert die Immobilienbranche

.. und das ist erst der Anfang. Kaum eine Branche bleibt vom Einfluss künstlicher Intelligenz unberührt – und auch die Immobilienwelt befindet sich mitten im Wandel. Während KI in der Wohnungswirtschaft längst Einzug gehalten hat, ziehen nun auch Gewerbeimmobilien nach. Ob Standortanalyse, Mietpreisprognose oder digitale Vermarktung: Intelligente Tools ermöglichen schnellere, fundiertere und oft überraschend präzise Entscheidungen.

Weiterlesen …

Nutzungsänderung in Köln jetzt einfacher

Was Gewerbetreibende in Köln wissen sollten: Wer eine Gewerbeimmobilie neu nutzen möchte – etwa ein Café statt eines Ladens oder ein Fitnessstudio statt eines Büros – steht oft vor der Frage: Brauche ich dafür eine Baugenehmigung? Bislang bedeutete das meist: formeller Bauantrag, Zeitaufwand und Unsicherheit. Doch jetzt gibt es gute Nachrichten für viele Nutzergruppen in Köln: Die Stadt hat den Prozess vereinfacht. Ab sofort genügt in bestimmten Fällen eine formlose Nutzungsanzeige statt eines aufwendigen Bauantrags. Was bedeutet das konkret?

 

Weiterlesen …

Click & Collect

Durch die Digitalisierung im Einzelhandel ist es für viele Menschen zur Gewohnheit geworden, die gewünschte Ware online zu erwerben. Die Kunden bestellen auf der Shop eigenen Website oder einer Verkaufsplattform und erhalten die Bestellung zeitnah an die Haustür. Bei Click & Collect wird ebenfalls online bestellt, doch der Kunde holt die bestellte Ware selbständig in einem Einzelhandelsgeschäft ab. Doch wie funktioniert „Click & Collect“ und was sind die Vorteile gegenüber des bereits weitverbreiteten Onlineshoppings?

Weiterlesen …

Immer mehr Einzelhändler stellen auf SB Kassen um

Doch haben SB Kassen nur Vorteile oder auch Nachteile für Einzelhändler und deren Kunden? Selbstbedienungskassen sind derzeit ein aktuelles und bestrittenes Thema. Zum einen bieten diese viele Vorteile für Kunden als auch für Einzelhändler zum anderen aber auch Nachteile. Doch überwiegen in diesem Fall die Vorteile? Der erste Vorteil ist selbstverständlich die Kosteneinsparung für das Personal, da lediglich ein Mitarbeiter gleichzeitig mehrere SB-Kassen beaufsichtigen kann.

Weiterlesen …

Starthilfe Digitalisierung im Einzelhandel

Seit Jahren beschäftigen Retailer sich mit dem Thema Digitalisierung im Einzelhandel, durch die Corona-Pandemie wurde dies aber nochmals vorangetrieben. Durch den zeitweisen Wegfall des stationären Handels als Verkaufsplattform finden nun auch die kleineren Händler den Zugang zum Online-Handel.

Weiterlesen …

Der Retailmarkt NRW 2021

Nachdem die Einzelhandels- und Gastronomiebranche im Jahre 2020 stark von der Corona-Pandemie beeinträchtigt wurde, kehrt seit Mitte des Jahres 2021 wieder etwas Normalität in der Branche ein. Der Lockdown zwischen Januar und Mai machte der Einzelhandels- und Gastronomiebranche zunächst wenig Hoffnung auf einen normal laufenden Geschäftsbetrieb. Nach dem Lockdown konnte sich der Markt glücklicherweise schnell wieder beruhigen und brachte positive Aussichten für die zweite Jahreshälfte mit sich.

Weiterlesen …

conceptstories eröffnet weitere Niederlassung in Düsseldorf und baut das Team aus!

Robin Berthold kommt als Niederlassungsleiter von der imovo aus Düsseldorf. Nach dem erfolgreichen ersten Geschäftsjahr 2020 folgt ein weiteres spannendes Jahr für die conceptstories Immobilien GmbH mit vielen interessanten Vermietungen sowie einem neuen Bürostandort in der Oststraße 45, in Düsseldorf.

Weiterlesen …

Ghost Kitchen: Ist dies die Zukunft der modernen Gastronomie?

Auch die Corona-Krise hat dazu beigetragen, dass das Thema ,,Ghost Kitchen“ für viele Gastronomen eine gute Alternative darstellt. In der sogenannten ,,Ghost Kitchen“ werden lediglich Speisen produziert und keine Gäste bewirtet. Die Pandemie hat den Trend der ,,Ghost Kitchen“ vorangetrieben und entwickelt sich nun zum Netflix der Gastro-Branche.

Weiterlesen …

Die richtige Zeit zur Handels- und Gastronomieflächen­suche!

Bereits seit  ungefähr einem Jahr sorgt die COVID-19 Pandemie für wirtschaftliche Schäden in jeglichen Bereichen. Stark hiervor betroffen sind die Einzelhändler und Gastronomiebetreiber, die aktuell und bereits in den vergangenen Monaten ihre Lokale oder Geschäfte nur eingeschränkt oder gar nicht öffnen durften. Aus diesem Grund ist die Expansion und Standortsuche bei vielen Unternehmen derzeit kein Thema.

Weiterlesen …

Conceptstories

Jetzt Objekt
vormerken

Noch nichts passendes dabei?

Kein Problem. Melden Sie sich einfach an und wir kontaktieren Sie, sobald geeignete Objekte verfügbar sind.